Home
Chi siamo
Servizi
Contatti
Vendite
Affitti
Immobili commerciali
Prestigio
Ricerca rapida
Codice
Tipologia
Vendite
Affitti
Immobili commerciali
Prestigio
Categoria
Qualsiasi
1 locale
2 locali
3 locali
4 o più locali
Appartamento
Attico
Azienda Agricola
Baita
Cantina
Capannone
Casa singola
Castello
Crotto
Dépendance
Duplex
Garage
Hotel
Laboratorio
Loft
Magazzino
Maisonette
Mansarda
Negozio
Porzione di Casa
Porzione Villa
Posto Auto
Posto Barca
Rustico/Casale
Stabile / Palazzo
Tenuta
Terreno Agricolo
Terreno Edificabile
Trullo
Ufficio
Villa
Villa Bifamiliare
Villetta schiera
Città
Tutte
Agliana (PT)
Carmignano (PO)
Pistoia (PT)
Poggio a Caiano (PO)
Prato (PO)
Quarrata (PT)
Serravalle Pistoiese (PT)
Zona
Tutte
Descrizione
Prezzo (da - a)
-
Mq (da - a)
-
Ordine
Inserimento
Codice
Categoria
Città
Zona
Prezzo
Metri quadri
Cerca
Richiedi informazioni
* Tutti i campi sono obbligatori
Codice: *
Nominativo: *
Telefono: *
Email: *
Dettagli richiesta: *
Autorizzo il trattamento dei miei dati personali in base Regolamento UE n. 679/2016 -
Privacy Policy
Invia
<< Torna indietro
Tweet
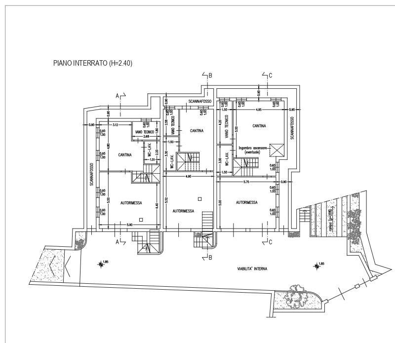
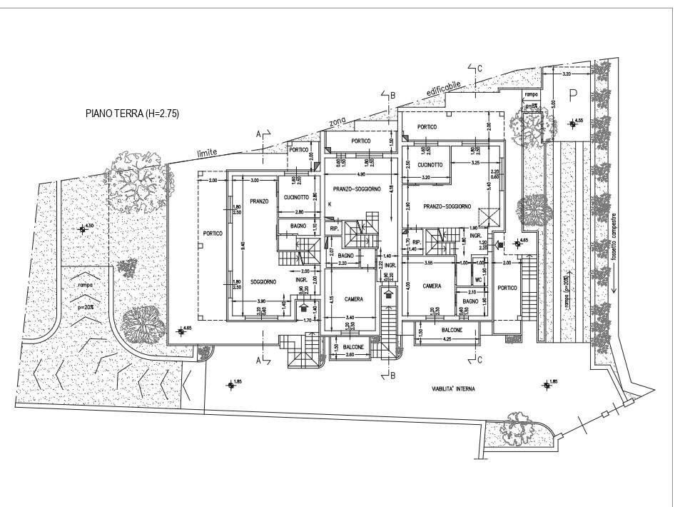
V C - Villetta centrale
Villetta schiera
Villetta a schiera centrale libera su 2 lati disposta su 3 livelli, composta da: al piano interrato da cantina da adibire a taverna, autorimessa, vano tecnico e wc/lavanderia. Al piano terra, per mezzo di portico, zona pranzo/soggiorno con angolo cottura con accesso al portico, camera matrimoniale con balcone, bagno e ripostiglio. Al piano primo, camera singola, bagno e loggiato.
Prezzo
600.000,00 EUR
Mq
151,67
Classe
NC
Locali
5
Camere
2
Bagni
3
Mq Balcone
1,12
Cantina - Solaio
Cantina
Mantieni impostazioni di default X
Uso dei cookies
Questo sito fa uso di cookies. I nostri cookies (propri) e quelli dei nostri Partners (cookies di terzi) servono per poterti offrire un'esperienza unica con noi. Per questo motivo, insieme ai nostri partners, raccogliamo e processiamo informazioni non sensibili (come l'identificatore del tuo dispositivo o le pagine che visiti).
In qualsiasi momento potrai eliminare, modificare o verificare le informazioni che condividi in
Cookie preference
o nella nostra
Cookie Policy
e
Privacy Policy
.
Necessari
Funzionali
Profilazione
Analitici
Accetta tutti
Rifiuta tutti
Accetta selezionati
Cookie preference